top of page
阿克斯摸具技术有限公司
专业生产T型模具和进料块
我们可以处理各种应用,包括高精度薄膜模具、片材模具和多层产品。
丹泽技术中心(设计、开发和制造基地)
0463-68-8223
传真:0463-57-8276
神奈川县畑野市宗谷553-1,邮编257-0031
03-6424-7570
总公司(行政及会计)
传真:03-6424-4676
CINZA101,东京都大田区南蒲田 2-8-2 144-0035
接待时间:8:30-17:30(周末及节假日除外)

进出口业务(销售海外制造的设备)
我们公司也与海外(亚洲)的设备制造商开展合作。
我们将贸易公司的功能与工程技术相结合,负责从确定设备规格到管理海外制造商设备的生产进度的一切事宜。
我们提供一站式服务,包括在客户工厂进行安装。
当然,设备安装完毕后,我们也会提供完善的售后服务。我们正与日本及海外的设备制造商合作,共同开发新的解决方案。
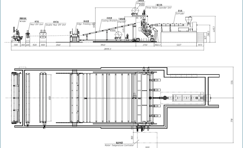
⭐️全球最大!板材成型设备,产品宽度达8米
土方工程板支撑着我们的日常生活,是土木工程基础设施建设的必要组成部分。
在日本市场上,2米宽的产品已广泛供应。通过增加片材宽度,预计可以大幅提高地基改良工程中片材铺设的工作效率。
为什么不考虑创办一家能够成为我们国家基础设施支柱的企业呢?我们国家是一个地震多发国家。

<设备整体视图(仅供参考)>

.png)
一条能够主导日本市场的大型板材成型生产线。
<T8400 手动模具>


<厚板成型/圆棒成型(固化成型)全套设备>

<适用于PEEK(高温工程塑料)的全自动厚板成型生产线>

圆棒模具也可根据客户规格定制。
我们可以满足从下单到交付的短周期要求。
请放心,售后服务我们一定会妥善处理!
小型充气成型装置
*无需额外设备!接通电源后即可立即使用!






它体积小巧,易于操作,也适用于试成型。它是样品开发、新产品开发试验、新材料成膜试验等的理想选择。
这是一款非常适合实验室使用的设备。无需其他设备(压缩空气、冷却水等),因此连接电源后即可立即进行成型测试。
价格(基本规格) 160万日元/台(不含税)
*运费另计。
*另有增大螺丝直径等可选方案。
bottom of page
